Lowndes Street, Heaton, Bolton, BL1

For Sale, Offers in Region of £210,000

2 2 1

Renovated family home with two bedrooms, modern decor throughout, and located in a highly desirable location of Bolton.

This attractive two-bedroom, terraced property is ideally located on Lowndes Street, Heaton. Lowndes Street is situated just off Chorley Old Road, close to amenities and within a short drive to places of natural beauty such as; Captains Clough, Queens Park and Doffcocker Lodge. The property is located within the catchment area of popular schools such as; St Thomas of Canterbury RC School, Devonshire Road Primary School and Church Road Primary School.

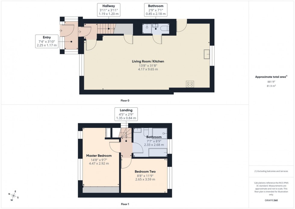
Upon entering the property, there is an entrance porch with laminate flooring, wall tiling and hanging hooks, an ideal space for storing coats and shoes. From here there is an entrance hallway, with laminate flooring, spotlighting and alarm system. The modern open plan living room and kitchen space, is a generous welcoming space with grey wood effect laminate flooring and spotlighting throughout. The kitchen is made up of grey gloss base and wall units, with a stainless steel sink with mixer tap, integrated gas hob and oven, extractor fan, white marble effect worktops and beige wall tiles. The property also benefits from a guest shower room, located just off the open plan living space, which is made up of white push flush toilet, white sink and walk-in shower cubicle with electric shower. Additionally, there is a handy under-stairs cupboard for further storage space.

Upstairs, the landing space has a UPVC window, loft hatch leading to a fully boarded loft space with lighting, and doors to two bedrooms and the family bathroom. The master bedroom, is located at the front of the property, is of a double size with grey laminate flooring, fitted sliding mirror door wardrobe, fitted storage cupboard, spotlighting and two UPVC windows. The second bedroom is located to the rear of the property, which is also of a double size with grey laminate flooring, spotlighting, radiator and UPVC window. The spacious family bathroom is made up of a three-piece white suite with additional walk-in shower cubicle, mains fed waterfall shower, spotlighting, PVC wall panels, PVC ceiling panels, heated towel rail and large frosted UPVC window.

To the rear of the property, there is a low maintenance, block paved yard, with gated access to the front of the property. At the front there is an attractive block paved driveway, providing off-road parking for up to two cars. Additional on-street parking is available for this property.

  • Two Bedroom, Terraced on Lowndes Street, Heaton, Bolton.
  • Modern Open Plan Living Room and Kitchen with Spotlighting
  • Sleek Grey Gloss Kitchen Units with Marble Effect Worktops and Integrated Appliances
  • Guest Shower Room
  • Two Double Sized Bedrooms with Grey Laminate Flooring
  • Fitted Wardrobes in Master Bedroom with Sliding Mirrored Doors
  • Three-Piece Bathroom Suite with Additional Walk-In Shower
  • Fully Boarded Loft with Lighting for Additional Storage
  • Block Paved Driveway for Off-Road Parking
  • Low Maintenance, Block Paved Rear Yard
Floorplan for Lowndes Street, Heaton, Bolton, BL1
EPC Graph for Lowndes Street, Heaton, Bolton, BL1

Book a Free valuation

Find out how much your property is worth