Cope Bank West, Smithills, Bolton, BL1

Sold STC, Offers in Region of £115,000

2 1 2

***Ideal Renovation Project in a Highly Sought After Area***

We bring to the market this two bedroom, terraced property on Cope Bank West, Smithills, is an ideal property for anyone looking for a renovation project, with modernisation required throughout. Cope Bank West is located just off Ivy Road in Smithills, which is a highly desired residential area and within a short drive from popular parks such as; Smithills Country Park, Moss Bank Park and Doffcocker Lodge. Harpers Lane falls within the catchment area of highly rated schools such as; Church Road Primary School, St Josephs RC Primary School, Thornleigh Salesian College and Smithills School.

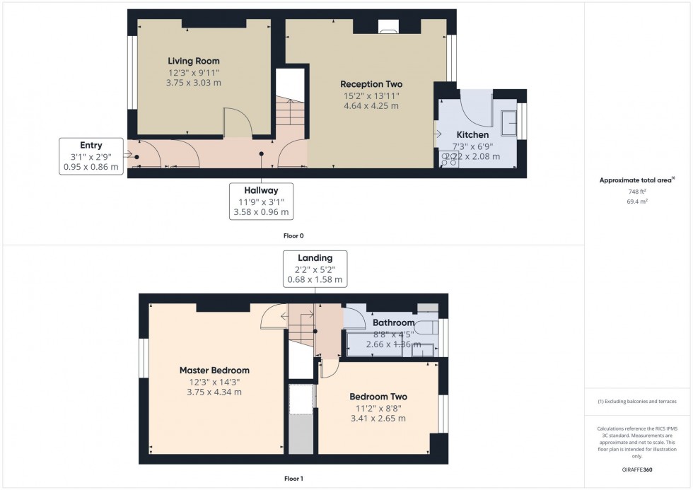
Upon entering the property, there is an entrance vestibule with tiled flooring and a bevelled glass door through to the hallway. The hallway has carpet, pendant lighting and bevelled glass doors to the living room and second reception room, as well as stairs to the first floor. The living room is a cosy size, with carpet, pendant lighting, electric fire with ornamental wood surround, electric heater and UPVC window. The second reception room, has carpet, pendant lighting, under stairs storage cupboard and a window overlooking the rear yard. Off the rear of the second reception room, is a kitchen with vinyl flooring, pendant lighting, base and wall units, wall tiles, window and rear door.

Upstairs, the landing has carpet, wall lighting, a loft hatch and three bevelled glass doors to two bedrooms and a bathroom. The master bedroom is situated at the front of the property, is of double size with carpet, pendant lighting, electric heater, UPVC window and built-in storage cupboard. Bedroom two is at the rear of the property, is of single size with carpet, pendant lighting, electric heater, UPVC window and built-in storage cupboard. The bathroom has carpet, a three-piece white suite, wall tiles and a frosted UPVC window.

At the rear of the property there is a flagged rear yard, with shed and space for outdoor seating.

There is a garden to the front of the property with well established plants and trees, with the addition of further lawned area and trees, providing privacy to the front. On street parking is available.

  • Two Bedroom, Terraced on Cope Bank West, Smithills
  • In Need of Modernisation Throughout
  • Two Reception Rooms
  • Two Bedrooms with Built-In Cupboards
  • Rear Yard
  • Not Overlooked at Front
  • Popular Residential Area
  • Investment Opportunity
Floorplan for Cope Bank West, Smithills, Bolton, BL1
EPC Graph for Cope Bank West, Smithills, Bolton, BL1
Similar Properties

Book a Free valuation

Find out how much your property is worth